|
Распродажа
Соглашение
 
 
 
Молодая команда
Интернет-компания по продаже картриджей awella.ru
Вот уже более 26 лет наша компания успешно занимается продажей расходных материалов для оргтехники, продаем картриджи для копировальных аппаратов (для бизнеса : на Canon, Epson, Brother, Samsung, Kyocera, Xerox, Panasonic, Minolta, Lexmark, OKI, Pantum, Ricoh, Toshiba) и бумаги для офисной техники по всей России.
Мы предоставляем для своих клиентов:
консультации, гарантию, программу бонусов, быструю доставку в том числе и бесплатную доставку до удобной клиентам транспортной компании, более 1250 пунктов выдачи по всей России, выписку счета, экономию, сервис.
|
Загрузка бумаги в Oki C3100
Кассетный лоток
1. Выдвиньте лоток для бумаги из принтера.
2. Разверните бумагу веером и выровняйте ее по краям (1) и в середине (2), чтобы обеспечить разделение листов должным образом, затем постучите по краям стопки на плоской поверхности, чтобы вновь выровнять листы (3).
3. Уложите бумагу (фирменные бланки следует укладывать лицевой стороной вниз и верхним краем в направлении к фронтальной стороне принтера).
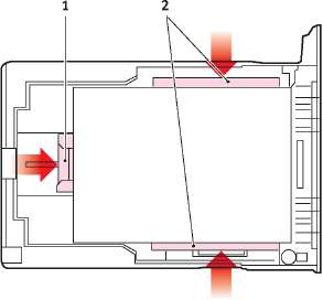
 Отрегулируйте задний ограничитель (1) и направляющие для бумаги (2) в соответствии с используемым размером бумаги.
Для предотвращения застревания бумаги:
Не оставляйте свободного пространства между бумагой и направляющими и задним ограничителем.
Не переполняйте лоток для бумаги. Емкость зависит от типа бумаги.
Не загружайте поврежденную бумагу.
Не загружайте одновременно бумагу разных размеров или типов.
Не выдвигайте лоток для бумаги в процессе печати. Закрывайте лоток для бумаги аккуратно.
4. Для печати лицевой стороной вниз убедитесь, что накопитель листов лицевой стороной вверх (задний) (3) закрыт (бумага выходит из верхней части принтера). Емкость накопителя составляет около 250 страниц, в зависимости от плотности бумаги.
Для печати лицевой стороной вверх убедитесь, что накопитель бумаги лицевой стороной вверх (задний) (3) открыт, и поддержка для бумаги (4) выдвинута. Бумага накапливается в обратном порядке, а емкость накопителя составляет около 100 листов, в зависимости от плотности бумаги.
Всегда используйте накопитель лицевой стороной вверх (задний) для плотной бумаги (карточки и др.)
Не открывайте и не закрывайте задний выход для бумаги во время печати - это может привести к застреванию бумаги.
Универсальный лоток
1. Откройте универсальный лоток и мягко нажмите вниз основание для бумаги (1), чтобы обеспечить его защелкивание.
2. Уложите бумагу и отрегулируйте направляющие для бумаги (2) в соответствии с используемым размером бумаги.
Для печати на фирменных бланках поместите бумагу в универсальный лоток отпечатанной стороной вверх и верхним краем обращенной к принтеру.
Конверты должны быть загружены лицевой стороной вверх, верхним краем влево и коротким краем в сторону принтера.
Не превышайте максимальную емкость - около 50 листов или 10 конвертов. Максимальная высота стопки составляет 10 мм.
3. Нажмите кнопку защелки лотка (3) внутрь для освобождения основания для бумаги, так чтобы бумага была поднята и захвачена в нужном месте.
Задайте правильный размер бумаги для универсального лотка в меню носителя.
 
 
при использовании материалов ссылка на сайт компании awella.ru обязательна
Помогла информация на сайте ? Оставьте отзыв о работе нашей компании ! Это можно сделать в яндекс браузере и это простимулирует работников нашей компании (ответственные получат бонусы), которые собирали ее для вас! Спасибо !
 
 
|